M

At sit eleifend efficiendi, utroque forensibus vel eu. Eros mandamus ad nam. Ad natum virtute pro, dicit scripserit nec cu et qui dicat.

Follow me:
Tw        Be        Fb        Pin

Mestská radovka

2023 benkobenkova

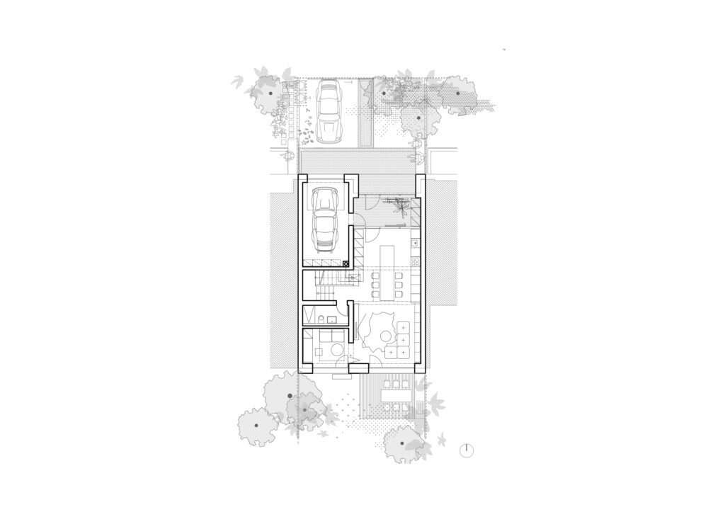
Súťaž návrhov na riešenie obnovy rodinných domov pre Plán obnovy a odolnosti SR / odmena /

 

po naštudovaní podkladov, sme zistili, že máme na stole dom, ktorý má v podstate nadčasovú – dobrú dispozíciu. Rozhodli sme sa, že budeme uvažovať o 4člennej rodine. Rodičia, občasne pracujú z domu, navštevujú ich zároveň starí rodičia. Rodina , ktorá sa rozhodla bývať v dome, ktorý poskytuje komfort veľkého bytu, ale má kontakt s ulicou, so zeleňou, so susedmi.

Ulica je pre nás dôležitá. Novoprofilovaný chodník delí od predzáhradiek drevený nižší latkový plot – uličná čiara. V ňom zakomponované odpadové nádoby. Predná záhrada* poskytuje priestor stretávania a zvítania rodiny ako aj susedov. Mimo zelenej časti pred domom zachovávame vstupnú niku, avšak táto je súčasťou prednej terasky v materiály fasády. Dôležitým prvkom je aj lavica – ako priestor pre neformálny oddych.

Fasáda. Uvažujeme o zjednotení fasád domov v rade – systémovo – rovnakým spôsobom. Tvaroslovie odporúčame rovnaké, v prípade potreby odlíšenia navrhujeme napr. každý dom môže mať inú farbu rámu vstupných dverí , alebo vstupný filter môže operovať s rôznym typom zasklenia – ornamentálne sklo, drátosklo vo vnútornom skle izolačného 3skla . Ďalšou možnosťou je jednoducho na maľovať časť fasády domu – priamo na nový tehlový plášť domov – zostane textúra drážok špár, a domová fasáda bude pôsobiť stále jednotne. /napr. ako je to pri Atlas house _atelier Monadnock /

Navrhujeme teda tehlovú predsadenú stenu k zaizolovanej obvodovej konštrukcii. Fasády jednotlivých domov sú jasne oddelené vertikálnou štrbinou, do ktorej možné vsadiť dažďový zvod – pohľadovo – rovnako je s ním možné uvažovať aj v novej polohe jadra vnútri dispozície.

*Predná ´záhrada ´ je súčasťou širšieho zeleného predpolia za plotom / vlastníctvo medzi parcelami je jasne stále definované vytýčením v podobe nízkeho múrika /, spredu lemovaného alejou vzrastlých stromov v záhonoch na ulici. Táto severná záhrada je rozšírená smerom k ulici / nie je to nutné, ale skôr poukazujeme na možnosť za predpokladu odkúpenia časti pozemku od mesta – má to viaceré pozitíva, mesto sa nemusí starať o rozsiahly verejný priestor – pojme ho vlastník, susedia majú tak možnosť vytvoriť si otvorený objemný zelený priestor so vzrastlou zeleňou (parkové stromy aj ovociny ) a získať kontrolovanú upravenú otvorenú komunitnú záhradu / park. Pri dohode už 2-3 susedov dostáva toto predpolie potenciál malého parku. Na chodníku ostal stále priestor aj na zasadenie aleje stromov so záhonmi. Ľudia by mohli byť motivovaní parkovať autá v garáži, mimo ulice či záhrady…kde sa deti vedia aj zahrať. Predzáhradka tak nie je nemusí byť zbytkový priestor, ale súčasťou živej ulice, ktorá je zapojená do každodenného kolobehu.