M

At sit eleifend efficiendi, utroque forensibus vel eu. Eros mandamus ad nam. Ad natum virtute pro, dicit scripserit nec cu et qui dicat.

Follow me:
Tw        Be        Fb        Pin

Gánkový dom

2023 benkobenkova
Súťaž návrhov na riešenie obnovy rodinných domov pre Plán obnovy a odolnosti SR

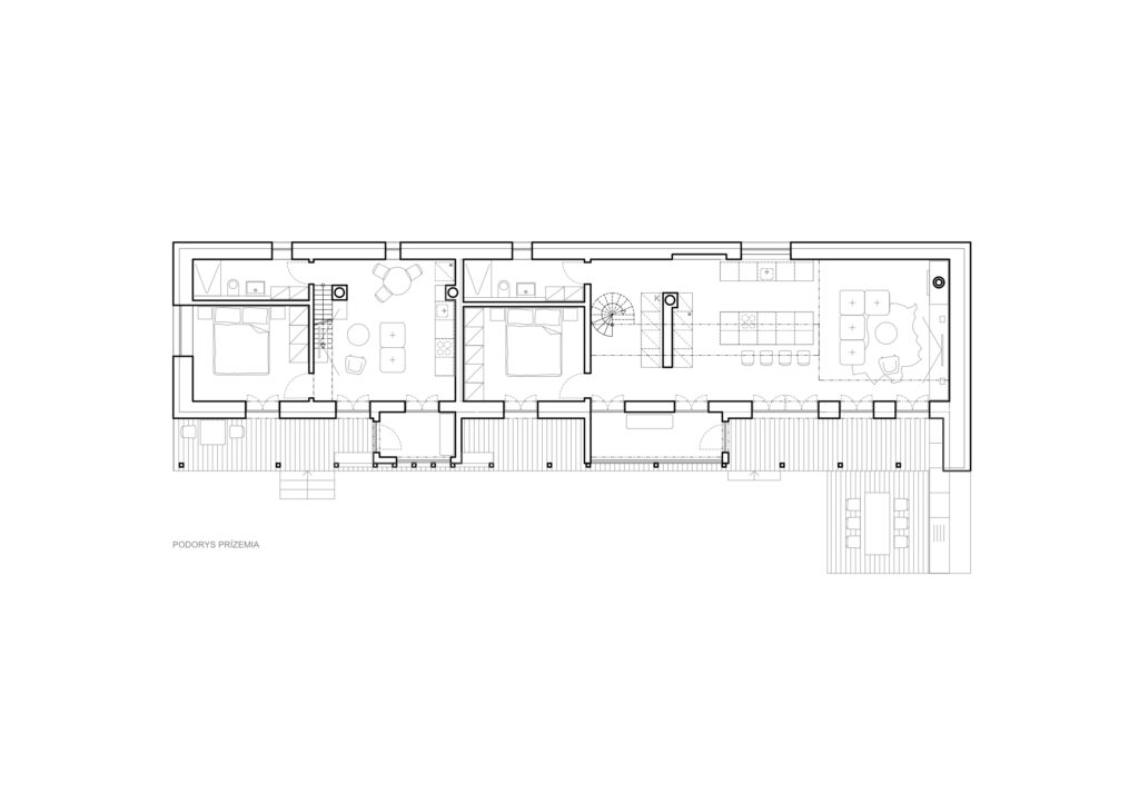
Gánkovy dom vídame v nespočetných variáciách naprieč regiónmi. Pokúsili sme sa pozrieť naň z pohľadu rodiny s ešte malými deťmi, ktorí sa presťahujú z mesta na vidiek. Sú to mestskí ľudia, pracujú na diaľku a občasne dochádzajú; homeoffice je nevyhnutný. Zároveň sú vo veku, kedy sú oporou aj pre svojich rodičov – starkých.
Samotný gánok re-interpretujeme, búrame jeho neistý – staticky nie istý základ – a nahrádzame podstrešie a gánok, novou drevenou konštrukciou. Do gánku vybiehajú vstupné priestory dvoch samostatných bytových jednotiek.
Dom perforujeme novonavrhovanými otvormi, reflektujúcimi dispozíciu.
Čo sa týka pozemku, je veľkorysý. Navrhujeme časť parcely vo vlastníctve investora obsadiť parkovou úpravou, s tým, že samotný plot uvažujeme odsadiť od uličnej čiary, zabráni sa tak zbytočnému parkovaniu áut na chodníkoch.
V prípade riešenia v mierke viacerých domov, by sa vytvoril zelený koridor ulice, na ktorom by sa mohli relatívne bezpečne hrať deti, a je to priestor ktorý vie dobre komunitne fungovať. Do plotu vpravo sú osadené odpadové nádoby. Zo zadnej strany posúži ako prístrešok záhradného náradia atď,.